Beschrijving

Deze woning is verkocht! 

In de Componistenwijk vindt u dit leuke 3-kamerappartement gelegen op de 1e verdieping van het op een centrale locatie gelegen appartementencomplex in Leiden. Lichte woonkamer, afgesloten keuken, badkamer met douche, twee slaapkamers en twee balkons zodat u op elk moment van de dag van het zonnetje/schaduw kunt genieten. Nieuwsgierig geworden? Dit zijn enkele kenmerken van deze ideale starterswoning gelegen in een groene woonomgeving welke uitermate geschikt is voor starters, maar ook voor ouders die willen investeren in huisvesting voor hun studerende kind. De berging vindt u op de begane grond. De woning is gelegen nabij winkelcentra De Luifelbaan en Wagnerplein, diverse sport- en recreatievoorzieningen, Bio Science Park, LUMC, universiteit, scholen, openbaar vervoer en uitvalswegen (A4/N11 en A44/N206). Met de komst van de RijnlandRoute is de bereikbaarheid nog beter geworden. NS Leiden Centraal, NS De Vink en het bruisende centrum van Leiden bevinden zich op fietsafstand. 

Bijzonderheden: de woning is gelegen op erfpachtgrond. De erfpachtcanon en de jaarlijkse administratiekosten zijn afgekocht tot 2072. Het is mogelijk om de erfpachtgrond in eigendom te verkrijgen. De woning is gedeeltelijk voorzien van kunststof kozijnen en (gedeeltelijk) dubbele beglazing. De gang, woonkamer, keuken en slaapkamers zijn afgewerkt met een laminaat vloer. Voor woningen van ruim 60 jaar oud nemen wij standaard een asbest- en ouderdoms-/materiaalclausule op in koopovereenkomst. Betaald parkeren/parkeervergunning. 

Het betreft hier een actieve VvE, servicekosten: € 161,34 per maand. 

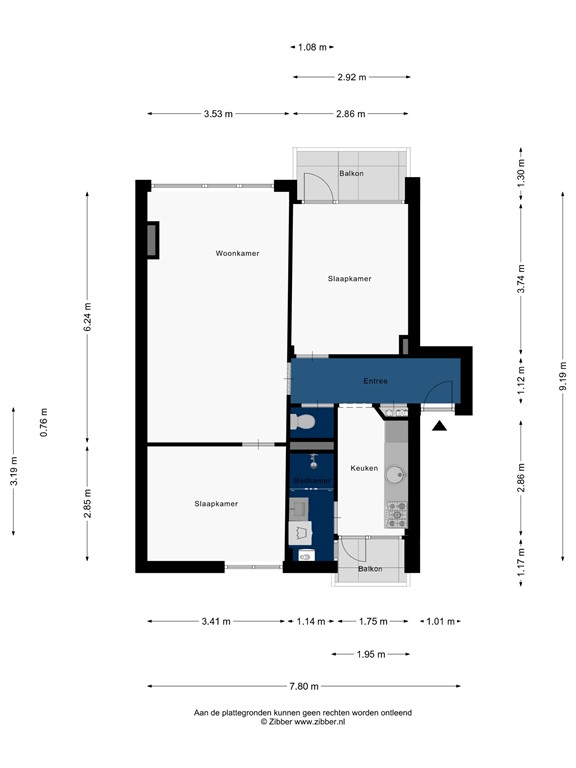
Meetrapport NEN 2580 beschikbaar.

Oplevering: 29 december 2025. 

Bouwjaar: 1961
Gebruiksoppervlakte wonen: 58,60 m2
Bruto inhoud woning: 193,59 m3

Ten aanzien van eventuele foutieve vermeldingen aanvaardt Werk Makelaardij B.V. geen enkele aansprakelijkheid

Kenmerken