Beschrijving
Heerlijk wonen in een rustig doodlopend straatje in de kindvriendelijke woonwijk Merenwijk in Leiden. Lichte tuingerichte woonkamer, gezellige open keuken, moderne badkamer met ruime inloopdouche, drie slaapkamers op de 1e verdieping, slaapkamer of hobbyruimte/thuiswerkplek op de 2e verdieping, uitgebouwde houten berging met extra dubbele deuren (uitermate geschikt voor (de) motor(fiets)en) en een voor- en achtertuin zodat u heerlijk van de zon kunt genieten. Nieuwsgierig geworden? Dit zijn enkele kenmerken van dit energiezuinige woonhuis (Energielabel A). Deze aantrekkelijke woning is voorzien van kunststof kozijnen met HR++ beglazing. Natuurliefhebbers opgelet! Niet ver van de woning bevinden zich het Wijkpark Merenwijk, De Zijl, natuurgebied Kagerzoom, ’t Joppe, Broek- en Simontjespolder en de Kaag. Gunstige ligging t.o.v. winkelcentrum Kopermolen, sport- en recreatievoorzieningen, scholen en uitvalswegen A4/N11. Station Leiden Centraal en het bruisende centrum van Leiden zijn snel te bereiken. Kortom, deze woning biedt u een perfecte leefomgeving voor jong en oud!
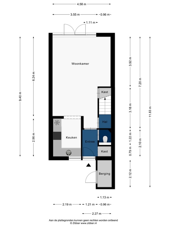
Indeling
Voortuin (NW) met toegang tot de aangebouwde stenen berging. Entree woning, gang met meterkast en een moderne toiletruimte met hangend (douche)toilet. Lichte tuingerichte woonkamer met trapkast. De keuken is gelegen aan de voorzijde van de woning en beschikt o.a. over een keramische kookplaat, oven, koel/vriescombinatie, Quooker, vaatwasser en inbouwverlichting. Vanuit de keuken heeft u uitzicht op de voortuin. De gang, woonkamer en keukenruimte zijn afgewerkt met een laminaat vloer. Via de dubbele openslaande deuren in de woonkamer bereikt u de zonnige achtertuin gelegen op het zuidoosten met zonnescherm en een achterom. De uitgebouwde houten berging met extra dubbele deuren is uitermate geschikt voor het stallen van uw motor(fiets)en.
1e verdieping:
Overloop. Aan de voorzijde van de woning vindt u een ouderslaapkamer. Aan de achterzijde van de woning bevinden zich nog twee slaapkamers. De moderne badkamer met wastafelmeubel incl. twee waskommen, verwarmde spiegel (incl. verlichting), ruime inloopdouche, 2e (hangend) toilet, designradiator, inbouwverlichting en ingebouwde audiospeakers maakt het geheel compleet.
2e verdieping:
Overloop met wasmachineaansluiting en opstelplaats voor de cv-ketel. De ruime L-vormige zolderslaapkamer met twee vaste kasten is tevens zeer geschikt als thuiswerk- en/of hobbyruimte. Extra bergruimte vindt u achter het knieschot.
Voor woningen van ca. 50 jaar oud nemen wij standaard een asbest- en ouderdoms-/materiaalclausule op in koopovereenkomst.
Energielabel: A.
Aanvaarding: in overleg.
Meetrapport NEN 2580 beschikbaar.
Bouwjaar: 1975
Gebruiksoppervlakte wonen: 103,80 m2
Bruto inhoud woning: 376,13 m3
Perceelopp: 115 m2
Ten aanzien van eventuele foutieve vermeldingen aanvaardt Werk Makelaardij B.V. geen enkele aansprakelijkheid.
Plattegronden
179747716_1589119_bolpr_begane_grond_first_design_20251125_694e2b.jpg
179747716_1589119_bolpr_eerste_verdiepi_first_design_20251125_48a339.jpg
179747716_1589119_bolpr_tweede_verdiepi_first_design_20251125_87040b.jpg
179747716_1589119_bolpr_berging_first_design_20251125_b655f5.jpg