Beschrijving

Een enkele keer komt er zo'n woonhuis beschikbaar aan de Fien de la Marstraat in Leiden! In de kindvriendelijke woonwijk Stevenshof ligt deze twee-onder-één-kap-woning met garage, eigen parkeerplaats(en) en een zonnige achtertuin op het westen. De veranda in de achtertuin is afsluitbaar middels glazen schuifwanden. Deze buitenruimte zal het hart van de echte tuinliefhebber zeker sneller laten kloppen! Achter de woning bevindt zich een (wandel)pad, groen en water. De mogelijkheid om in een bootje te stappen en naar het bruisende centrum van Leiden, recreatiegebied Vlietland of de Kagerplassen te varen maakt het geheel compleet. Sfeervolle woonkamer met houtkachel en een open trap, gezellige woon/eetkeuken, vijf slaapkamers en een badkamer met ligbad en een separate douche. Nieuwsgierig geworden? Dit zijn enkele kenmerken van deze in een groene en waterrijke woonomgeving gelegen woning. Deze ruime woning is goed geïsoleerd (Energielabel A+), CV/WW via stadsverwarmingsnet en voorzien van een mechanisch ventilatiesysteem. Er zijn 18 zonnepanelen geplaatst. Prettig voor het milieu maar ook voor uw portemonnee want het draagt bij aan lage maandelijkse energielasten. Gasloos wonen! Door het plaatsen van de inductiekookplaat is de gasmeter in deze woning overbodig geworden en daarom verwijderd. Gunstige ligging t.o.v. winkels, sport- en recreatievoorzieningen, gezondheidscentrum (inclusief apotheek), Stevenspark, LUMC, scholen, universiteit, Bio Science Park, NS De Vink en uitvalswegen A4/N11en A44/N206. Met de komst van de RijnlandRoute (N434) is de bereikbaarheid nog beter geworden. Ook ESTEC (ESA) in Noordwijk, American School of The Hague in Wassenaar en het bruisende centrum van Leiden zijn snel te bereiken. Kortom, deze woning biedt u een perfecte leefomgeving voor jong en oud.

Indeling

Voor de woning en de garage, op de oprit, is ruimte om twee auto's te parkeren op eigen terrein. De achtertuin is ook via de garage te bereiken. 

Entree woning, hal met meterkast (2019)/stadsverwarming en een moderne toiletruimte. Ruime tuingerichte woonkamer met open trap. Door de raampartij en schuifpui geniet u van veel daglicht en een optimaal uitzicht op de achtertuin. De houtkachel biedt u het gehele jaar een gezellig vuurtje. Ook in de gezellige woon/eetkeuken is het goed vertoeven. De moderne keuken (2019) beschikt o.a. over een inductiekookplaat inclusief geïntegreerde afzuiging (Bora), combi oven, hetelucht oven en een vaatwasser. De vrijstaande Amerikaanse koelkast met display wordt door de verkoper ter overname aangeboden. De woonkamer en keukenruimte zijn afgewerkt met een eiken houten vloer. Via de schuifpui in de woonkamer bereikt u de zonnige achtertuin gelegen op het westen (middag-/avondzon) met elektrisch bedienbaar zonnescherm en toegangsdeur naar de garage. Kenmerkend voor deze opvallend ruime tuin is de vrije ligging waardoor u veel privacy geniet. De houten veranda met aangebouwde berging is afsluitbaar middels glazen schuifwanden en maakt deze woning extra bezichtigingswaardig. Achter de woning bevindt zich een (wandel)pad, groen en water. Ook veel speelmogelijkheden voor kinderen in de directe omgeving van de woning.

Via de open trap bereikt u de 1e verdieping:
Overloop. Aan de voorzijde van de woning vindt u de ouderslaapkamer met vaste kast. Aan de achterzijde van de woning bevindt zich nog een ruime slaapkamer en een slaapkamer die uitermate geschikt is als hobby-/studie- of kinderkamer. De geheel betegelde badkamer is voorzien van een ligbad, separate douche, wastafelmeubel, 2e toilet en een designradiator.

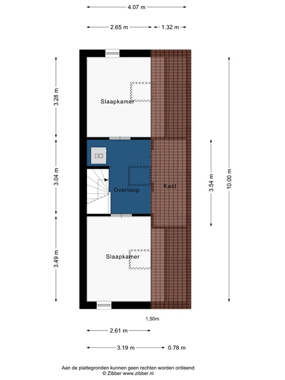
2e verdieping:
Overloop met dakraam en wasmachineaansluiting. Op deze verdieping bevinden zich nog twee slaapkamers met dakramen. De bergvliering en knieschotten zorgen voor handige opbergruimte.

Bijzonderheden: géén erfpacht maar eigen grond. De de grond is in 2010 in volle eigendom verkregen. Géén gasmeter aanwezig.

Meetrapport NEN 2580 beschikbaar.

Energielabel: A+

Aanvaarding: in overleg.

Bouwjaar: 1986                                                                                                                                                                                                                                                     Gebruiksoppervlakte wonen: 140,80 m2                                                                                                                                                                                                                                        Bruto inhoud woning: 557,46 m3                                                                                                                                                                                                                                       Perceelopp: 243 m2

Ten aanzien van eventuele foutieve vermeldingen aanvaardt Werk Makelaardij B.V. geen enkele aansprakelijkheid.

Kenmerken