Beschrijving
Buitenkans! Fijn wonen in een kindvriendelijke woonomgeving met speelweide voor- en achter de woning! Op een leuke locatie in een rustig straatje in de woonwijk Vlietwijk in Voorschoten bevindt zich deze charmante eengezinswoning met voor- en achtertuin (zuid west) zodat u op elk moment van de dag heerlijk van het zonnetje kunt genieten. Deze woning beschikt o.a. over een lichte uitgebouwde woonkamer met moderne open leefkeuken, extra woonruimte door de dakkapel aan de voor- en achterzijde van de woning, moderne badkamer met ligbad en drie ruime slaapkamers. Nieuwsgierig geworden? Dit zijn enkele kenmerken van dit instapklare woonhuis die tevens voorzien is van dubbele beglazing (HR++) en kunststof kozijnen. De woning is goed geïsoleerd. De woning is gelegen aan de rand van het groene Voorschoten. Het gezellige centrum van Voorschoten bevindt zich op ca. tien minuten loopafstand waar een groot aanbod van voorzieningen, winkels, supermarkten en horeca te vinden is. In en nabij Voorschoten bevinden zich diverse sport- en recreatievoorzieningen (hockey, voetbal, tennis en honkbal). Kinderopvang en basisschool zijn op korte afstand van de woning te vinden. Het Groene Hart, waterrijke recreatiegebied Vlietland, LUMC, universiteit Leiden, Bio Science Park, American School of The Hague in Wassenaar, treinstation, uitvalswegen A4/N11, N434, A44/N206 en het bruisende centrum van Leiden zijn goed te bereiken. Kortom: prettig wonen voor het hele gezin!
Indeling
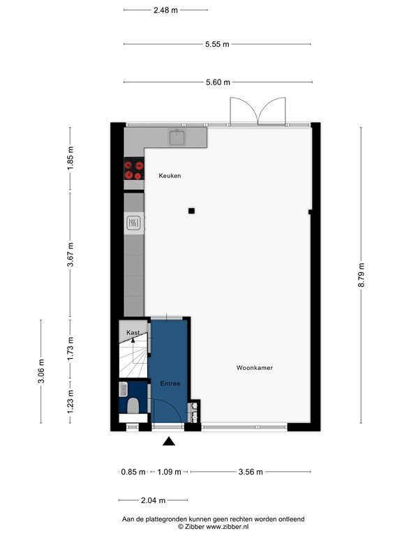
Voortuin. Entree woning, hal met meterkast (2020), trapkast en een moderne toiletruimte (2020). De trapbekleding, inbouwverlichting en zwart stalen taatsdeur zorgen voor een luxe uitstraling. Door de grote raampartij geniet u van een lichte straatgerichte woonkamer met aantrekkelijk uitzicht op groen. Het nette stuukwerk maakt het geheel compleet. De gezellige keukenruimte bevindt zich aan de achterzijde van de woning. Er is genoeg ruimte voor een grote eettafel. Heel leuk wanneer u vrienden of familie hebt uitgenodigd voor een diner... De moderne hoekkeuken (2020) beschikt o.a. over een inductiekookplaat (2025), rvs afzuigkap, Quooker (2021), combi oven, koel/vriescombinatie en een vaatwasser (2025). Vanuit de keukenruimte heeft u uitzicht op de achtertuin. De hal, toiletruimte, woonkamer en de (leef)keuken zijn afgewerkt met een onderhoudsvriendelijke pvc vloer inclusief vloerverwarming (2020). Zon- en tuinliefhebbers opgelet, hier gaat uw hart zeker sneller van kloppen! Via de dubbele openslaande deuren bereikt u de zonnige achtertuin op het zuidwesten. Door z’n ruime afmeting en vrije ligging is deze achtertuin heerlijk zonnig. De stenen berging, elektrisch bedienbaar zonnescherm en de achterom zorgen voor extra comfort. Achter de achtertuin bevindt zich een speelveldje voor de jongste kinderen.
1e verdieping:
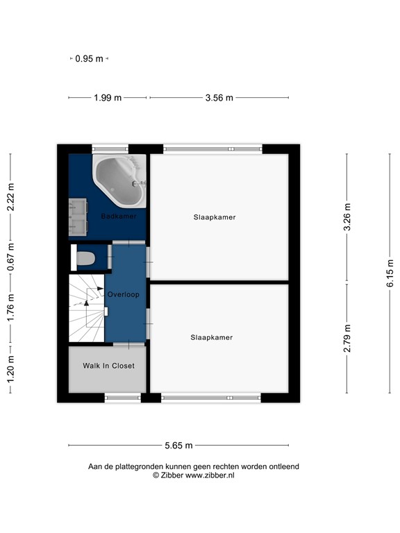
Zwart stalen trapleuningen naar de verdiepingen. Overloop met inbouwverlichting en 2e toiletruimte. De voormalige badkamer is thans in gebruik als walk-in closet. De ruimere badkamer beschikt nu over een ligbad/douchecombinatie, inbouwverlichting, dubbele wastafelmeubel met verwarmde spiegel incl. verlichting. Aan de voor- en achterzijde van deze eengezinswoning bevindt zich een ruime slaapkamer.
2e verdieping:
Overloop met dakraam, wasmachineaansluiting en de opstelplaats voor de cv-ketel (2020). Omdat deze verdieping aan voor- en achterzijde is voorzien van een dakkapel (2025) geniet u van een ruime slaapkamer met airconditioninginstallatie. Deze ruimte kan eventueel ook ook in twee kamers worden gesplitst door een muur en deur(en) te plaatsen. De knieschotten bieden u handige opbergruimte.
Voor woningen van ruim 60 jaar oud nemen wij standaard een asbest- en ouderdoms-/materiaalclausule op in koopovereenkomst.
Aanvaarding: in overleg.
NEN 2580 Meetrapportage beschikbaar.
Bouwjaar: 1961
Gebruiksopp. wonen: 105,50 m2
Bruto inhoud woning: 373,65 m3
Perceelopp: 135 m2
Ten aanzien van eventuele foutieve vermeldingen aanvaardt Werk Makelaardij B.V. geen enkele aansprakelijkheid.
Plattegronden
181625353_1621585_paulu_begane_grond_first_design_20260127_1c6d33.jpg
181625353_1621585_paulu_eerste_verdiepi_first_design_20260127_a1e78a.jpg
181625353_1621585_paulu_tweede_verdiepi_first_design_20260127_386d53.jpg
181625353_1621585_paulu_berging_first_design_20260127_f19c8c.jpg